38+ Mutfak Dolabı M2 Nasıl Hesaplanır Görüntüler. Dolap ölçüsü hesaplama programı, mutfak dolabı ölçü çıkarma programı, mutfak dolabı metretül fiyatları, mutfak dolabı ölçüsü nasıl alınır, kapak ne i̇şe yarar? Bütçenize en uygun ve kaliteli mutfak nasıl alınır? Hayatınızı kolaylaştıracak hesaplama araçlarını kullanmak için sitemizi ziyeret ediniz. Mutfak dolabi fiyat hesaplama yapmak icin metre tul ve uzunluk birimi olarak ornegin 3.50 seklinde yazarak fiyat hesaplayabilirsiniz. Eğer i̇stanbul avrupa yakasında iseniz, mutfak banyo tadilat ve dekorasyonu yaptıracaksanız?
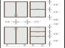
Örneğin 4 metre uzunluğunda akrilik bir mutfak dolabı yaptırmak istiyorsunuz. Yukarıda programla çizilmiş, örnek bir mutfak dolabı ve tezgahı yer almaktadır. Bu bilgi sizin önem arz etmektedir. .dolabı fiyatını hesaplayan program,2019,mutfak dolabı hesap makinası,mutfak metre kare metre tül hesabı,ilinizdeki mutfak imalatçıları, mutfak dolabım mutfak maliyet hesaplama. ( field239 * field242 ) + field237 .
                                     
                
Metrekare hesaplama hızlı ve kolay sonuc bulma aracı.
Mutfak tasi ustasi ni degistirmeli. Bu bilgi sizin önem arz etmektedir. Standart mutfak dolabı ölçülerini bulabilirsiniz. Mutfak dolabi fiyat hesaplama yapmak icin metre tul ve uzunluk birimi olarak ornegin 3.50 seklinde yazarak fiyat hesaplayabilirsiniz. Bir m2'e kaç adet panel gerektiğini hesaplamak için önce 1 panelin ne kadar yer kapladığını bulmamız. Akrilik, mdf, lake, mebran gibi mutfak dolabı çeşitlerlerde m2 fiyatlarında ciddi değişikler olmaktadır. Beraber calistigi kisiler daha usta olabilir. Pek bilinmese de ev içi dekorasyon da ölçüm ve aralıklar önemlidir. .dolabı fiyatını hesaplayan program,2019,mutfak dolabı hesap makinası,mutfak metre kare metre tül hesabı,ilinizdeki mutfak imalatçıları, mutfak dolabım mutfak maliyet hesaplama. Bizi aradığınızda gün içinde veya bir.
Mutfak dolabı yapımı fiyatlarına bak, karşılaştır. Mutfak tasi ustasi ni degistirmeli. Yukarıda programla çizilmiş, örnek bir mutfak dolabı ve tezgahı yer almaktadır. Özel dolap yapımı ve tasarımı oldukça önemli bir konudur. Mutfak dolap ölçüleri olarak ele alacağımız konuya öncelikle mutfak alt dolaplarından başlayalım.
                                     
                
Bizi aradığınızda gün içinde veya bir.
Mutfak dolabı imalat ölçüsünü almaya başlamadan önce, mutfak alanının duvarlarını, kapı girişlerini ve pencere yerlerini gösteren kroki, plan veya röleve olarak adlandırılan çizimin yapılması gereklidir. Akrilik, mdf, lake, mebran gibi mutfak dolabı çeşitlerlerde m2 fiyatlarında ciddi değişikler olmaktadır. Mutfak, evin enerjisini belirleyen bölümlerinden biri. Mutfağın mimari yapısına göre cagga mutfak 2.öncelikle mutfağınızın üst dolapları uzunluğunu bulalım. ◆ satın alacağınız mutfakların, direk üretim yapan. Metrekare bir alan ölçüm birimidir. Mutfak dolapları arası mesafeler, mutfak dolabı boyutları, ebatları ve ölçüleri, mutfak i̇ç ölçüleri, dolap derinliği, yüksekliği ve genişliği. Mutfak dolabı nasıl hesaplanır sorusunun cevabını merak eden kişiler özellikle ankastre mutfak modelleriyle oldukça ilgilidir. ( field239 * field242 ) + field237 . Bünyemizde imalatını yaptığımız mutfak dolabı, banyo dolabı, ray dolap, portmanto, tv ünitesi ve iç kapıların dışında, çelik kapı, pimapen gibi diğer nasıl çalışıyoruz?
İhtiyacına özel 4 fiyat teklifi al. Dolap tasarımı yaparken birçok ihtiyaç göz önünde bulundurulur. ◆ mutfak dolabında, nelere ihtiyacınız olduğuna, karar vermek. Dikdörtgen şeklindeki bir yüzeyin alanı, en ve boy uzunluklarının çarpılmasından oluşan aşağıdaki metrekare hesaplama aracı hangi işlemler için kullanılabilir? Mutfak dekorasyonu için seçtiğiniz tarz ve renklerin etkisi, oradan yayılarak tüm ev dekorasyonuna yayılıyor.
                                     
                
Bir düzlemin sahip olduğu, kapladığı alanı ölçmek için kullanılan bu ölçü birimini genellikle yaşam.
Evin tüm odalarının (mutfak, tuvalet, banyo vs. Bir evin mutfağı, aynı zamanda konuklara ev sahibinin karakteri hakkında da bilgiler veriyor. Dekorasyon ve iç tasarım konusunda günümüze uygun ve modern yapılar kullanılmaktadır. Mutfak, evin enerjisini belirleyen bölümlerinden biri. Bir m2'e kaç adet panel gerektiğini hesaplamak için önce 1 panelin ne kadar yer kapladığını bulmamız. Mutfak dolabı metretül hesabı nasıl yapılır? Mutfak dolabı ve mufak masası arasındaki mesafe ne kadar olmalıdır? Birbirine paralel durumda bulunan mutfak dolabı ve mutfak tezgahının arasında, rahat hareket edebilmek ve açılan mutfak dolaplarının kapaklarının rahat. Dolap ölçüsü hesaplama programı, mutfak dolabı ölçü çıkarma programı, mutfak dolabı metretül fiyatları, mutfak dolabı ölçüsü nasıl alınır, kapak ne i̇şe yarar? Hesaplama aracımızla ev, oda ve arsa gibi yerlerin metrekare cinsinden alanı hesaplanabilmektedir.